Einfamilienhaus mit Garage und Pool
Domizil für Familie mit 2 Kindern bei Frankfurt
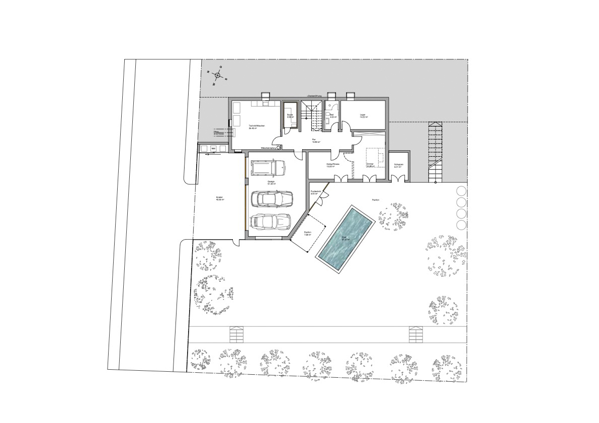
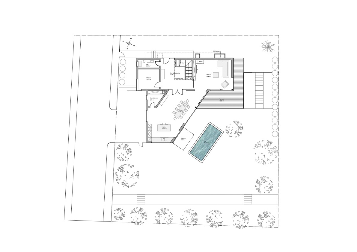
Daten
- Grundstück: 963 m² (Hanglage)
- Grundfläche: 186 m²
- Wohnfläche: 245 m² (ohne Terrassen)
Ausstattung
- Offene Wohnküche
- Offener Kamin
- Wäscheabwurfschacht
- Sauna
- BeheizterAußenpool
- Natürlich belichteter Hobby-Fitnessraum
- Integrierte Einliegerwohnung
- Mittlerer Ausbaustandard
- Dachterrasse
- Garage für 3 Fahrzeuge
- Optische sowie akustische Abschottung zur anliegenden Straße
- Generierung maximaler Gartenfläche
- Optimale Tageslichtnutzung
- Stromerzeugung mittels Photovoltaik, Überschuß wird in das öffentliche Stromnetz eingespeißt
- Warmwassererzeugung (inklusive Poolspeisung) mittels Wärmepumpe
Projekt bei Müchen

Einfamilienhaus mit Carport und Pool
















